






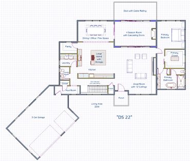
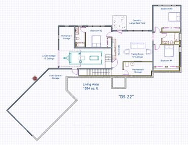
This thoughtfully designed home takes full advantage of its breathtaking territorial views, visible from every room. Experience the perfect blend of privacy and convenience, with the primary suite and versatile flex space located on the main level. Below, family and guests enjoy their own dedicated space, ensuring comfort and privacy for all.
The upstairs four-season room is an entertainer’s dream, with cascading doors that open to effortlessly blend indoor and outdoor living. Perfect for year-round relaxation or hosting guests, this space offers a seamless transition to the outdoors.
The home also features a 3-car garage, a sunny upper deck, and a lower deck that leads to a spacious yard—ideal for outdoor activities and gatherings.
Available for pre-sale, this home offers the opportunity to personalize your interior finishes with expert guidance, ensuring a smooth and stress-free build experience.





Nestled on a quiet cul-de-sac, this beautifully designed home offers a perfect blend of comfort and luxury. The primary suite and a versatile flex space are conveniently located on the main level, while upstairs provides private accommodations for family and guests.
The open floor plan seamlessly connects the living and dining areas to the gourmet kitchen, which features high-end appliances perfect for any home chef. This home offers an unparalleled living experience in a tranquil, secure community.
The home also features a 3-car garage, large deck for entertaining, quaint front porch, and spacious yard for family gatherings.
Available for pre-sale, this home offers the opportunity to personalize your interior finishes with expert guidance, ensuring a smooth and stress-free build experience.


Check out this great video by Tyson Rowley (Broken Bench)
Building Homes in Bellingham, Semiahmoo, Anacortes, and Ferndale
Matt Lynch (360) 318-4825 (Owner) rubiconidc@gmail.com
